Verkiezingsprogramma 2018-2022
Nog 7 weken tot de gemeenteraadsverkiezingen. PvdA-GroenLinks presenteert haar ideeën voor Vught en Cromvoirt in het verkiezingsprogramma ‘Vught kan beter’. Vol plannen voor een sociale…
Nog 7 weken tot de gemeenteraadsverkiezingen. PvdA-GroenLinks presenteert haar ideeën voor Vught en Cromvoirt in het verkiezingsprogramma ‘Vught kan beter’. Vol plannen voor een sociale…
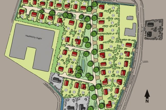
Tijdens de commissie Ruimte van 25 januari 2018 kwam het bestemmingsplan Stadhouderspark Kamers 1 aan de orde. Hierin is opgenomen dat er 30 woningen worden…
Bent u geïnteresseerd in duurzame initiatieven in onze gemeente? Fiets dan mee op zaterdagmiddag 27 januari. PvdA-GroenLinks organiseert die middag een fietstocht langs duurzame initiatieven…
In alweer het 12e fractiejaarverslag maakt de PvdA-GroenLinks fractie de balans op van het jaar 2017. Een jaar met enkele bescheiden succesjes voor de partij.…
Zaterdag 13 januari organiseert PvdA-GroenLinks haar nieuwjaarsborrel in Proeverij Klavertje 4 (voormalige De Getuige) aan het Marktveld. Vanaf 16:00 is iedereen welkom om hier te…
PvdA-GroenLinks is een voorstander van de 36 zorgwoningen die Vughterstede wil bouwen aan de Merpatistraat. Toch stemde de fractie in de raadsvergadering van 14 december…
In de laatste raadsvergadering van 2017 sprak de gemeenteraad zich unaniem uit tegen het ontbreken van maatregelen voor trillingen bij het spoor. PvdA-GroenLinks is daar…
Na de verhitte discussies eind september en begin december tussen met name de coalitiepartijen onderling, kwam lokale TV door Avulo afgelopen donderdag in de raad…
Op dinsdag 12 december houdt PvdA-GroenLinks vanaf 20.00 u. een Open Inloop in De Gereghthof aan het Marktveld. Tijdens deze bijeenkomst praat de fractie de…
Geven we Zwaluw V.F.C. de kans een plan uit te werken hoe zij hun ‘droom’ (een geheel nieuwe accommodatie) willen realiseren of houden we vast…